Há muito temos falado por aqui sobre a importância da automação na operação de edificações, assim como a sua importância para se obter o melhor desempenho em todos os sentidos (energético, conforto e melhores condições para a sua ocupação e produtividade, etc).
A Consulting Specifying Engineers divulgou nesta semana um artigo pelos profissionais CASIMIR ZALEWSKI e DEREK CROWE, descrevendo justamente um passo a passo, além da necessidade do envolvimento de profissionais específicos, para a integração da automação em sistemas prediais.
O artigo está em inglês e vale a pena ler.
Integrating a BAS into design
From (de): Consulting Specifying Engineer
By (por): CASIMIR ZALEWSKI AND DEREK CROWE
Acesse aqui o artigo diretamente em sua fonte.
Building systems should be high-performing, integrated and accessible — and the building automation system is the key to achieving these goals

Learning Objectives
- Engage the owner, installers and equipment representatives on what needs building controls and why.
- Define the process on how to lay out a control system with key checkpoints.
- Understand how to implement construction documents with clear requirements for the team.
Building automation systems are key to creating high-performing, integrated and accessible spaces. Engineers are experts at designing systems to meet a specific criterion, but the reality is that system capabilities far exceed one specific criterion.
There is a process to manage and meet expectations that is easily scalable to project size and scope. While the process may appear more time-consuming, it is not meant to add time, but rather save time, cost and questions throughout construction and occupancy.
Architects spend countless hours in visioning, conceptual design, programming and planning meetings, along with design charettes to provide a building that meets the owner and occupant needs. Depending on the building typology, detailed or nondetailed room data sheets may be produced to help the engineer define the function of the engineering systems while defining peak loads.
The engineers work with architects and other specialists to validate these peak demands of the space, identify individual room loads and how the main infrastructure should be sized to support future flexibility and adaptability. This translates into certain maximum loads on the heating, ventilation and air conditioning; plumbing; electric and power; lighting; communication; and fire protection and life safety systems.
Many construction documents are fantastic at covering this portion of the design. But what happens when it is not the hottest or coldest day of the year or the space has all the equipment on but very few people are in the space? How does the system support limited resources by maintenance staff for preventive maintenance? The BAS is often expected to address all aspects of part load conditions, remote monitoring and alarms and integration of all systems.

Define control system goals
Every building, owner and occupant group is different and the technical ability of the building operators, local trade professionals and parts availability differs. Trying to apply one solution for all projects can lead to challenges. Yet many times, engineers rely on building control system representatives or generic sequences of operation from master specification providers to cover the critical nature of system operation intent.
So, like the programming and planning process that defines the many needs of a building, the control system designer must understand which key stakeholder groups to engage to determine what needs control and why.
During the early phases of design, identify the stakeholders and who will be making a final decision in the case of differing opinions. Determine if there are any client standards in place that will dictate design direction. Also, discuss client preferences for equipment, providers and installers. Overall, what are the goals for the control system, are there any special control requirements, will the new system need to integrate to a new or existing system and is the existing systems compatible with the new system?

It is important to engage all these individuals early to understand all project aspects.
Typical control system stakeholder groups include:
Facilities management: The design team needs to engage the immediate owner, but often there are many interested parties within the owner’s organization that also need to be consulted. Usually there is a FM person or team. FM typically provides direction on minimum operating efficiencies, building or campus functions, scheduling needs and other big-picture directives. They may also identify preferences regarding specific systems, providers, components or considerations for future system integrations.
Energy management: Energy managers may want to weigh in on specific metering, monitoring and trend data that are desired to measure and verify system operation. Identify as early as possible the sustainability or energy goals, as the owner may have to cover the associated costs in expenditure models and project budgeting.
Building operator: Depending on market and building typology, a building operator could be part of the facilities management team or, depending on the size of the organization, individuals may be assigned to care for specific buildings or groups of buildings. These individuals usually have a wealth of knowledge about a building’s history and should be encouraged to share what has or has not worked well. They often know and understand the owner’s needs.
Other groups: Consider including other groups, for example, commissioning agents, engineering experts, construction manager, equipment vendors or maintenance contractors. They all have practical experience on what is available and what typically gets tweaked and adjusted during functional testing and system startup.
In the absence of control system stakeholders, use engineering judgment appropriate to the type, budget and sophistication of the building, client or user and communicate these decisions out to the project team.
Communicating design intent
There are many individuals and teams that will have input into the control system and there will be many elements that need to be represented and described in the contract documents. How do all the thoughts and ideas make their way to the final construction documents and ultimately into the final building? It takes planning and appropriate checkpoints to properly achieve the project’s successful completion.
Set up clear communication with the client and the entire project team. It is the duty of the design professional to listen, educate and provide recommendations for the owner to make the best decision.

Once preliminary controls diagrams are developed, a meeting with facility users, industry partners (when potential control partners are known), commissioning agents and the design and engineering teams provides a platform to describe the design team’s understanding of what should be controlled. This leads into the discussion of how and why. How will each system operate? How will the system communicate and integrate to other components? Why are certain control modes required? Why are certain control and monitoring points desired? Each party has an opportunity to weigh in on the elements, complexities and costs. Resolution may not happen in one discussion and may take multiple meetings, but the process decreases surprises later in the project aiding in project construction, closeout and post-occupancy.
As the project moves into construction documents, it is important to develop sequence of operations to clearly identify the modes of operation and connection between devices. The same group of stakeholders should reconvene to flush out any potential challenges before the project goes into construction. Some of these challenges could be as simple as a disagreement on one section of one sequence of operations or something more major regarding equipment functionality or controllability. Multiple sessions may be necessary to cover all systems and modes of operation.
In construction, the focus shifts from theoretical sequences with their preliminary time functions, setpoints and expected equipment operation to addressing the realities of installation — test and balance setpoint validation, loop tuning, actual equipment performance and other construction-associated modifications. In each case, recording the adjustments in both the record drawings and within the control system is imperative as accidental system resets, power events and staff changes occur and the knowledge of these tweaks can be lost.
While opportunities for collaboration throughout the design and construction process always arise, sometimes it is necessary to force parties engaged through the life of a project to aid in understanding and operational success.

Documenting control system design intent
Producing construction documents for the control system has several basic components: general requirement notes, control diagrams identifying the arrangement and relationship of components, sequences of operation and identification of all the minimum control and monitoring points. During the design process there are also key checkpoints to verify and validate components, control and monitoring points, control modes and trends.
As the design progresses, the control designer develops and presents the overall anticipated architecture, individual control diagrams, sequences and then potential alarms and control trending. Each stage of development represents a key checkpoint.
Contract documents identify the minimum construction requirements for the bidding process of a project. Although contract documents are comprised of drawings and specifications, the drawings are typically what get frequently referenced — and are usually what survive, long after the specifications get put away.
Documents that describe a system solely through a narrative may require the controls installer to interpret design intent and in some cases may result in the lowest-cost system with a minimum level of functionality and flexibility. Clearly identifying the system requirements in both written and drawn formats helps provide distinct intent to the controls vendor.
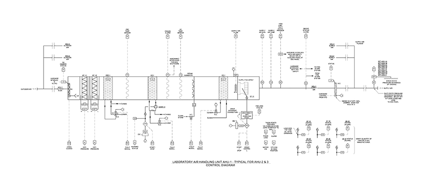
Control system architecture, diagrams
Consider developing a system architecture that clearly defines minimum panel requirements and transmission systems such as main communication trunks between network panels and other control devices. These can be variable frequency drives, terminal equipment and other proprietary systems such as a variable refrigerant flow system, the fire alarm, kitchen automation systems and the like. The client may want each central system such as an air handling unit, heating plant or cooling plant on its own control panel to limit interruption of service due to the loss of a panel. Terminal equipment associated with each central system may be desired to be on individual communication networks in lieu of the maximum number of terminal devices on each subnetwork to limit network traffic.
As soon as the mechanical, electrical and plumbing systems are determined, it is a good time to develop preliminary control diagrams for each system. Larger projects have multiple engineers working on specific items. Developing a picture of what you understand the system to be, along with the components associated with it, helps all parties in collaboration of design.
Including important notes that emphasize power requirements, battery backups and the need for virtual points, dead bands and control point adjustability warrant a place on the drawings. If the control drawings use specialized symbology and abbreviations, separate than what typically exists on the mechanical standard legend and consider a specialized legend for the control series. Each component that needs to be controlled should be identified.
Diagrams comprise the backbone of most control systems. The diagram includes the components to be controlled such as a fan, coil or pump as well as the devices associated with each component like motor starters or variable frequency drives. Elements are typically modulated based on feedback from a sensor or device, which is also indicated on the control diagram and could be documented in the sequence of operations. For a coil, how many valves serve the coil, are the valves normally open or closed, should the valve return to a specific state upon loss of power or signal?
While many of these items can be covered generically in a specification, application may differ for a specific piece of equipment. There are many questions that, if not clearly defined, may not meet the client or the user’s needs. The diagram acts as a visual representation of all devices, components and sensors. It plainly identifies the arrangement and relationship between all the elements. The diagram provides a complete picture for each stakeholder to review the proposed design and provide feedback. Each element can be identified for control and monitoring points such as analog or digital inputs or outputs helping the installer and operator better understand the intended system operation.
Which points should be displayed on the graphical user interface? Which of these points is read-only and which is write-access? Graphic depictions of what points should be displayed on the graphical user interface and what points should be writable provide clarity to bidders. Where these visual representations provide clarity, the written sequence of operations expands the requirements to include the necessary interactions between each element.
Control sequences of operation
Integration of packaged equipment, controllers and systems are often expected. Through ASHRAE, we have a standard communication language in BACnet. However, packaged equipment and systems offer potentially thousands of control and monitoring points and there are myriad ways of controlling equipment. Providing a sequence of operations, even for packaged systems, helps all parties understand expectations and reduce frustration when systems become operational.
Where the diagram identifies all the components and control devices, the sequence defines scheduling requirements, operating modes, setpoints, alarms, integration and transitions through seasons or operational changes. The sequence should give clear instruction to the programmer on expectations. Some key questions to address are:
- What are the specific modes of operation?
- What device controls each element?
- Is there a specific sequence for components to modulate or enable?
- What time delays are appropriate?
- How does the equipment start?
- Are there limiting factors or time delays before another component can enable or modulate?
- What happens in a planned or emergency shutdown?
- Are there requirements for life safety or secure operation?
- What default values should the system assume when restarting after a power loss or a communications network failure?
If these types of questions are not answered during design, they will result in all parties having to spend more time generate requests for information, cause multiple submittal reviews, adjustments during commissioning, startup, functional testing and long after the building has been occupied to ultimately meet owner expectations.
As the control system is responsible for aspects of operation, an area that is sometimes overlooked is the design intent of redundant equipment. Many systems have a backup pump or fan, but at what time and how often should equipment rotate. Is this setting and process clearly defined and is it readily accessible to make adjustments pending maintenance staff availability? Do rotations happen by system operation or do the operators prefer to schedule switchovers to occur on a particular day?
Like equipment rotation, many contract documents do not describe the intent for staging or modulation of equipment. Lack of clarity puts additional effort on the startup and commissioning teams to tune loops, make decisions about redundant equipment and determine staging for different operating conditions.
Measurement and verification
A critical item in today’s high-performance buildings is understanding real-time energy usage for diagnostics, education and operational efficiency. Having accurate and appropriate sensors feeding data to the applicable meters with proper communication is the first step. The second is ensuring the meters are correctly calibrated.
An important question becomes: “How much data is the required amount to properly accomplish the goals?” Too much data, network traffic and storage may become issues. Not enough data, and the investment might not fully be used in terms of analytics and diagnostics. Best practice suggests designers should specify trend expectations. For example, the system shall have the capacity to store one year’s worth of data for all points logged on a 15-minute interval.
Designers are not always clear on what trends should be recorded. Most specifications identify the need for trending but do not offer guidance on which points and how often. Like energy usage, what is the typical goal of specific trends and how much network traffic and data storage is required to accomplish each? What is the duration of certain trends? Consider identifying specific points, recorded every so many minutes, for a set duration and after that period, the data are archived.
During the commissioning process, temporary trends can be established to monitor specific systems. Are these trends deactivated at the completion of commissioning activities? Some processes, equipment or individual zones are critical to the building’s operation. What are the specific needs of these trends? The specifics may vary, but the documentation of these need to be recorded. Consider, having the commissioning agent clarify what the specific needs are.
During the beginning of operation and occupancy, sporadic issues that only occur at specific times under specific conditions can be elusive and be difficult to diagnose. Proper trend logging is therefore essential for short and long-term troubleshooting of controls systems. Having parameters defined for trends reduce effort for all parties to add trends when these situations arise.
Identifying alarms and setpoints
As facilities continue to address budget reductions, the chance a maintenance staff member is always available is becoming less common. The need to classify alarms into different categories is becoming more important. How many levels of alarming is needed for each project? Are there critical alarms that need to be addressed immediately by a monitoring service, on-call staff member or service company, or to address public safety? Alarms that need next-day attention could be tasked out when a staff member arrives. Other alarms may signal equipment maintenance or operations to watch. As these tiers are defined, output from the BAS may be integrated to facility management software through programming.
During design, engineers calculate expected operating setpoints and schedule specific rates or ranges for each system to operate. Adjustments during start up, functional testing and commissioning are common. Some adjustments to lighting control devices such as occupancy sensors may be permanent, whereas a maximum-speed setting on a variable frequency drive may be lost during a power event.
Setpoints determined by a balancer or other trade professionals are critical for efficient operation. While this can be contained in the operations and maintenance manuals, having tags added to equipment or to the graphical user interface helps operators know where equipment should be controlling to. Additionally, when setpoints are reset for energy saving control, it can be very helpful to operators to see what the current controlling setpoint is, what the default is and what the total operating range value could be.
Commissioning and occupancy
Commissioning truly begins in design. Having the commissioning agent in design meetings helped define specific elements or sequences they may need to prove out the system. As the level of sophistication increases with more interactions between systems and multiple layers of alarms, the commissioning agent may need a matrix of cause and effect, particularly with large complex buildings (e.g., life safety) so it is clear to everyone how different systems interact.
Owner staff should be engaged during on-site training and commissioning so they can learn about the systems in a hands-on way. This is generally more useful than half a day of in-classroom training. An owner and operator that experience the system as it was constructed and tested will be better able to react to user requests and maintain the performance of the systems.